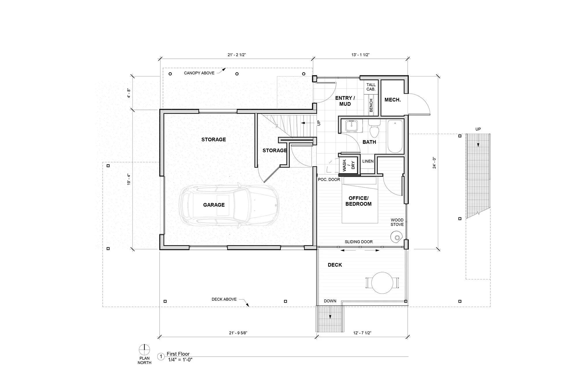
Mushroom Lane
Status: Under Construction
Location: Vallecito Lake, CO
Area: 800 - 1,000 ft²
An efficient lake retreat with an incredible view. The property is in a flood zone and it butts against Bureau of Reclamation land, so views will forever remain unobstructed.
